Современные технологии значительно изменили подход к разработке сложных инженерных объектов. Одним из самых эффективных инструментов для улучшения процессов проектирования стало использование цифровых моделей, которые позволяют визуализировать и анализировать различные параметры еще на стадии планирования. Это открывает новые возможности для более точной и быстрой работы специалистов в области строительства и эксплуатации объектов.
Создание виртуальных моделей позволяет не только улучшить точность и скорость разработки, но и оптимизировать ресурсы, минимизируя возможные ошибки в будущем. Применение таких технологий помогает интегрировать все элементы системы в единую структуру, выявляя потенциальные проблемы на ранней стадии и значительно сокращая затраты на последующие работы.
Особое внимание стоит уделить инструментам, которые позволяют моделировать взаимодействие всех компонентов в виртуальной среде. Это способствует более детальному анализу и точному прогнозированию работы объекта в реальных условиях. В результате, проектировщики могут быть уверены, что разработка будет реализована на высшем уровне, с учетом всех нюансов и возможных сложностей.
Облако тегов
Роль 3D-моделей в разработке инженерных решений
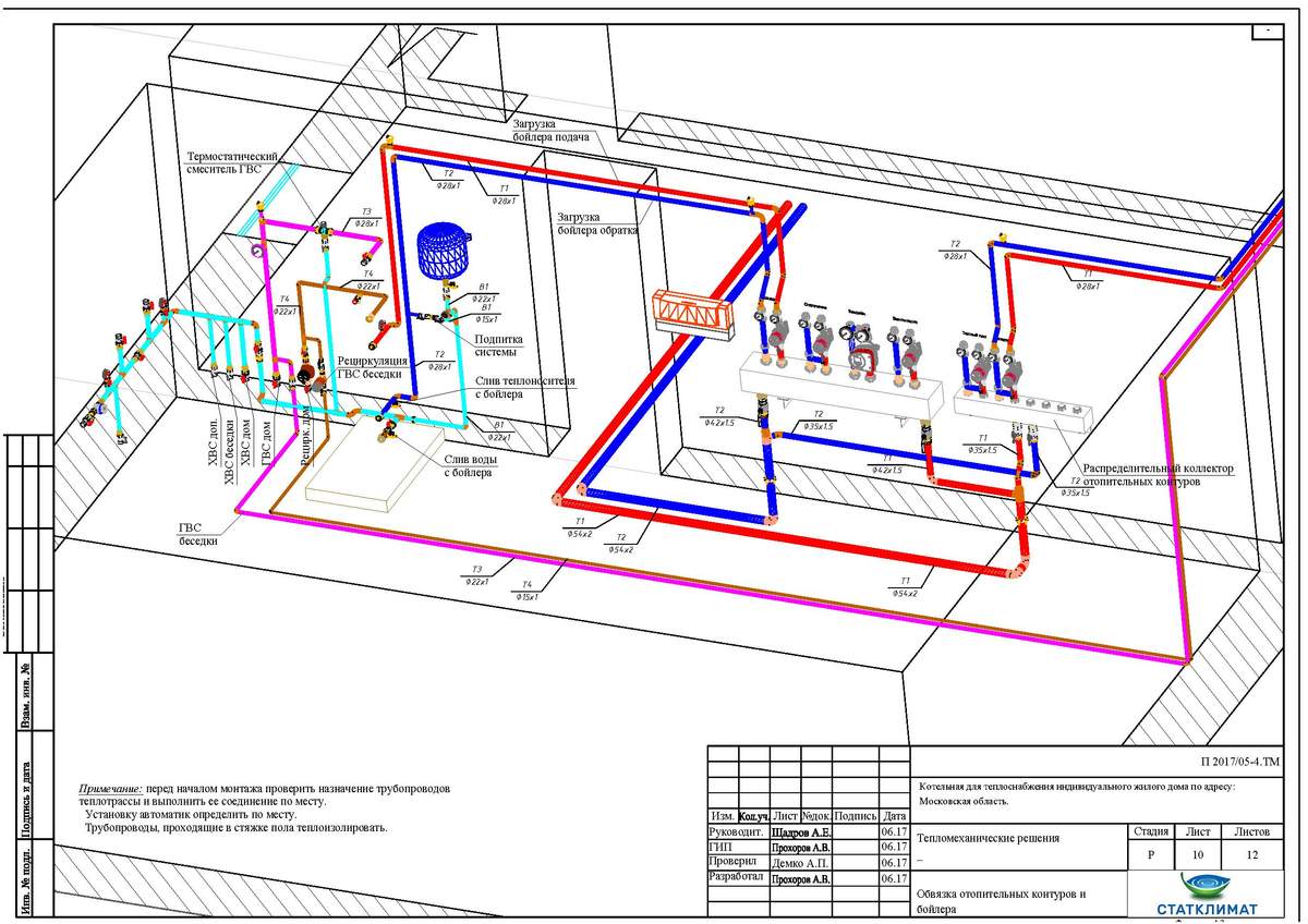
Современные технологии открывают новые горизонты в области разработки инженерных объектов, позволяя создавать виртуальные модели, которые значительно упрощают и ускоряют процесс планирования. Благодаря таким решениям, проектировщики могут заранее увидеть, как различные компоненты будут взаимодействовать между собой, и предотвратить возможные проблемы еще до начала физического строительства. Это особенно важно для сложных объектов, где каждая деталь требует точного расчета и учета.
Применение цифровых моделей позволяет не только улучшить точность, но и сократить время на устранение потенциальных ошибок, оптимизируя работу всех специалистов. Использование таких инструментов дает возможность анализировать и корректировать проект в реальном времени, что ускоряет процесс согласования и утверждения документации. Кроме того, виртуальные модели дают четкое представление о конечном результате, позволяя предсказать возможные сложности на стадии разработки.
Таким образом, интеграция цифровых технологий в процесс создания инженерных решений – это не просто улучшение качества работы, но и экономия средств, минимизация рисков и повышение надежности конечного продукта. Эти методы открывают новые возможности для специалистов, стремящихся к совершенству в каждой детали.
Облако тегов
Преимущества использования 3D-технологий в инженерных решениях
Современные цифровые технологии значительно изменили подход к проектированию и строительству. Виртуальные модели позволяют улучшить процесс разработки, обеспечивая более точное представление об объекте и взаимодействии всех его элементов. Это не только сокращает время на разработку, но и минимизирует риски, связанные с ошибками, которые могут возникнуть на разных этапах. Благодаря этим инструментам специалисты могут проводить более глубокий анализ, избегая непредвиденных ситуаций в будущем.
Ускорение процесса разработки
Одним из главных преимуществ использования цифровых моделей является значительное сокращение времени, необходимого для создания и утверждения проектной документации. Все компоненты, взаимодействующие в объекте, можно проверять и корректировать в режиме реального времени. Такой подход позволяет быстро находить и устранять возможные несоответствия, что делает процесс разработки более гибким и быстрым.
Оптимизация использования ресурсов
Цифровые технологии не только ускоряют разработку, но и помогают оптимизировать ресурсы. Точные расчеты и модели позволяют избежать ненужных затрат на материалы, а также дают возможность эффективно распределить нагрузку на все компоненты. Это способствует не только экономии, но и повышению надежности и долговечности конечного продукта, что является важным аспектом при реализации сложных инженерных решений.
Облако тегов
Как цифровые модели помогают в оптимизации монтажа
Использование виртуальных моделей значительно упрощает процесс установки сложных инженерных объектов, позволяя заранее оценить взаимодействие всех элементов и их расположение. Такие подходы помогают избежать многих ошибок, которые могут возникнуть при традиционном подходе, когда изменения в процессе работы требуют дополнительных затрат времени и ресурсов. Благодаря цифровым моделям специалисты могут на этапе планирования точно увидеть, как будет выглядеть готовый результат, и заранее внести коррективы в проект.
Оптимизация монтажа становится возможной благодаря точным расчетам и визуализации, которые помогают избежать конфликтов между различными частями конструкции. Модели позволяют выявить проблемные участки, такие как недостаточно свободное пространство или невозможность установки компонентов в требуемом положении. Это дает возможность сделать установку более быстрой и безопасной, а также сократить затраты на перепроектирование и переработку объектов.
Кроме того, виртуальные модели облегчают процесс координации между различными специалистами, так как каждый из них может работать с единой и актуальной моделью объекта. Это устраняет несоответствия в данных и снижает вероятность возникновения ошибок в процессе сборки. В конечном итоге такие технологии способствуют созданию более качественных и долгосрочных решений при минимальных затратах.








