Энергоэффективность комфорта
Каждая задача в сфере создания и обслуживания современных систем требует не только высококвалифицированного подхода, но и применения нестандартных решений.
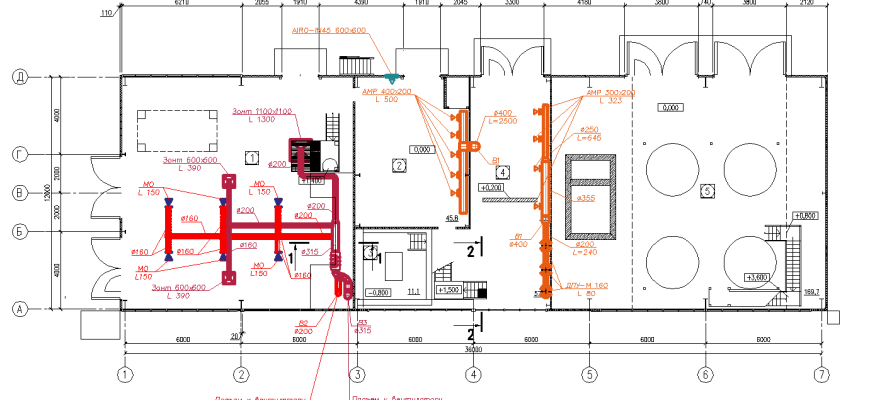
В крупных общественных пространствах, где ежедневно проходят тысячи людей, важно создавать комфортные условия, соответствующие современным требованиям
Современные методы разработки инженерных решений в области вентиляции и кондиционирования открывают новые горизонты для создания высокоточных и эффективных устройств.
Современные методы разработки инженерных решений в области вентиляции и кондиционирования открывают новые горизонты для создания высокоточных и эффективных устройств.
Современные подходы к управлению климатическими и вентиляционными установками направлены на повышение их эффективности и долговечности. В основе этого
Поддержание оптимальных условий микроклимата на сельскохозяйственных объектах имеет решающее значение для эффективного функционирования всех процессов.
Поддержание оптимальных условий микроклимата на сельскохозяйственных объектах имеет решающее значение для эффективного функционирования всех процессов.
Каждое оборудование требует правильных условий для эффективной работы. Важно не только поддерживать стабильную температуру, но и обеспечить надлежащую
Правильная организация климатических условий в современных гостиничных комплексах имеет ключевое значение для удобства гостей и энергоэффективности здания.
Правильная организация климатических условий в современных гостиничных комплексах имеет ключевое значение для удобства гостей и энергоэффективности здания.










