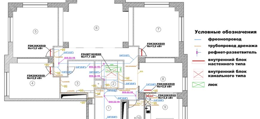
Современные многоэтажные комплексы требуют особого внимания при разработке систем, которые обеспечивают комфорт и безопасность их жителей. Инженерные установки должны учитывать огромное количество факторов, влияющих на функционирование помещений на различных уровнях. В таких объектах важно создание надежной и эффективной инфраструктуры, которая справляется с задачами вентиляции, отопления и кондиционирования воздуха.
Каждый элемент инфраструктуры должен быть интегрирован с другими, чтобы обеспечить стабильную работу и минимизировать расходы на эксплуатацию. Важно подобрать правильное оборудование, учитывая специфику здания и его назначения, а также климатические условия региона. От качества этих решений зависит не только комфорт, но и долговечность объектов.
Кроме того, современные подходы к разработке таких инженерных систем позволяют использовать инновационные технологии, способствующие улучшению энергоэффективности и снижению воздействия на окружающую среду. Опытные специалисты знают, как грамотно спланировать установку, чтобы все элементы работали с максимальной отдачей при минимальных затратах.
- Облако тегов
- Основы создания инженерных решений для небоскрёбов
- Облако тегов
- Выбор оборудования для инженерных решений в многоэтажных зданиях
- Облако тегов
- Управление микроклиматом в многоэтажных строениях
- Интеграция различных технологий для контроля климата
- Роль энергоэффективности в поддержании микроклимата
- Облако тегов
Облако тегов
Основы создания инженерных решений для небоскрёбов
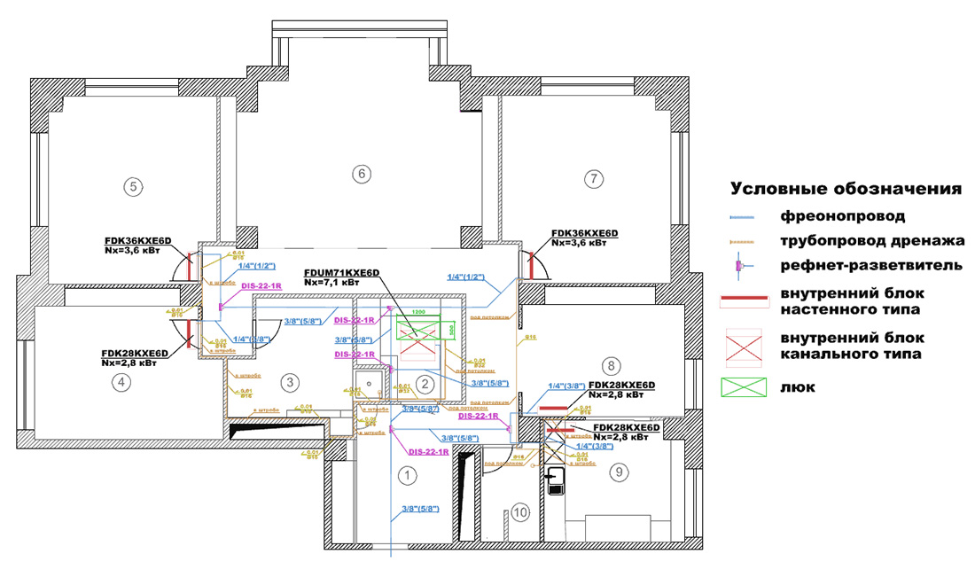
В современных многоэтажных сооружениях особое внимание уделяется инфраструктурным объектам, которые обеспечивают комфортное пребывание людей, поддерживая оптимальные параметры воздуха. Эти установки требуют тщательной проработки на стадии разработки, так как они должны эффективно работать на различных уровнях здания и справляться с нагрузками, характерными для таких объектов. Важно создать баланс между мощностью, энергоэффективностью и устойчивостью к внешним воздействиям.
Одним из ключевых аспектов является выбор оборудования, которое будет функционировать эффективно в условиях высоких зданий. Решения должны учитывать такие факторы, как количество этажей, плотность застройки, местные климатические условия и технические ограничения. Специалисты, разрабатывающие эти установки, должны использовать передовые технологии и инструменты для расчёта и оптимизации рабочих процессов.
Кроме того, важным является правильное расположение всех элементов и интеграция разных систем. Нужно обеспечить их взаимодействие так, чтобы все устройства работали синхронно, минимизируя вероятность поломок и снижая эксплуатационные расходы. Подобный подход способствует не только повышению эффективности, но и значительному продлению срока службы оборудования.
Облако тегов
Выбор оборудования для инженерных решений в многоэтажных зданиях
Одним из важнейших аспектов является подбор таких агрегатов, которые смогут работать в условиях интенсивной нагрузки и высоких потребностей в охлаждении или отоплении. Это касается как больших кондиционеров, так и отопительных котлов, насосов и вентиляторов. Все элементы должны быть оптимально сбалансированы и интегрированы для бесперебойной работы на протяжении всего срока службы объекта.
Кроме того, необходимо учитывать влияние климатических условий и особенности местоположения. Важным критерием является также возможность использования инновационных технологий для повышения эффективности и снижения потребления энергии. Подбор качественного и надежного оборудования позволяет не только снизить эксплуатационные расходы, но и продлить срок службы всей инфраструктуры.
Облако тегов
строительство многоэтажных объектов
Управление микроклиматом в многоэтажных строениях
Интеграция различных технологий для контроля климата
Для того чтобы эффективно управлять температурными показателями и качеством воздуха, часто используются системы, работающие на основе интеллектуальных технологий. Такие решения включают автоматическое регулирование температуры и влажности в зависимости от времени суток или количества людей в помещении. Кроме того, современные системы могут анализировать внешние условия и подстраиваться под них, минимизируя потребление энергии и увеличивая комфорт.
Роль энергоэффективности в поддержании микроклимата
При создании комфортных условий в многоэтажных объектах особое внимание уделяется энергоэффективности. Интеграция современных решений позволяет не только поддерживать нужную температуру, но и снижать эксплуатационные расходы. Использование экологически чистых технологий, а также минимизация теплопотерь через использование качественных изоляционных материалов и энергоэффективных агрегатов помогает существенно сократить затраты на поддержание нужных параметров воздуха.








